

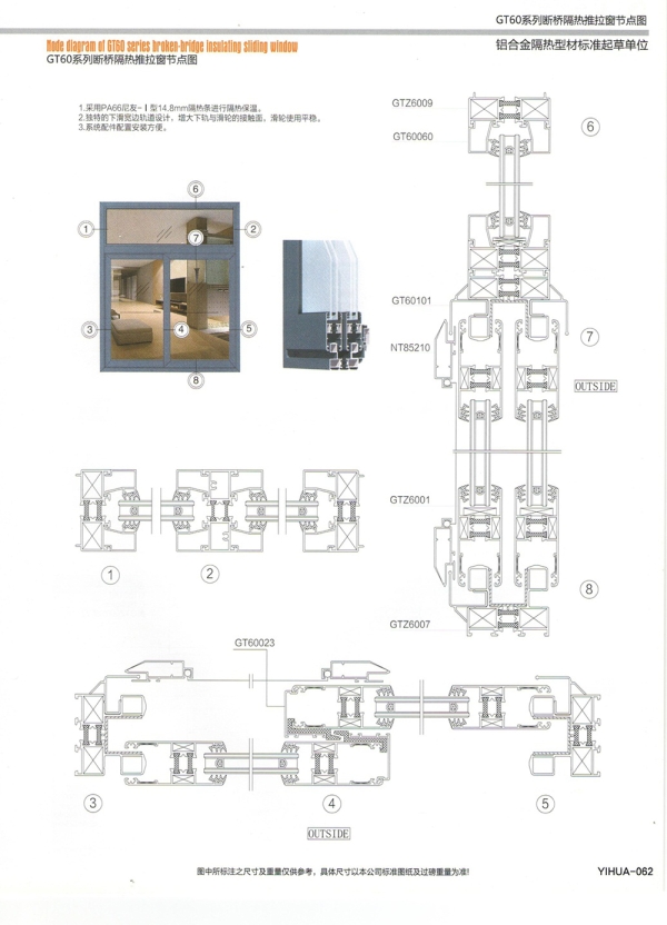
Yihua Aluminum's new metal material research and development and rapid production capacity exhibition. While producing the traditional aluminum alloy building profiles, the new aluminum alloy profile products are continuously launched. Doors and windows, aerospace, subway cars, machinery and equipment, cars, TV wire racks, recreational facilities, etc. are all in areas.